1705 Cliffside Dr

Barton Hills, Austin TX 78704
1705 Cliffside Dr — exterior view from street

1705 Cliffside Dr

1966 Mid-Century Modern · Barton Hills, Austin TX

Watch our video walkthrough tour on YouTube

Executive Summary

$2,700,000 Ask price ($861/sqft on 3,137 sqft)
$1,200,000 Prior purchase (May 2024, "needs rehab")
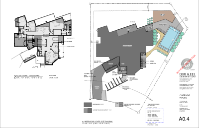
4 bed / 3.5 bath 0.33 acres
Built 1966 Full gut renovation 2024-2025
Assessment: $2.7M is defensible but not a bargain. The corrected 2901 Cedarview comp ($880/sqft) shows that top-tier Barton Hills construction trades at or above Cliffside's $861/sqft. However, Cedarview is true new construction (2021) with pool/spa/garage on a smaller lot, while Cliffside is a renovated 1966 home with carport and no pool. The asking price is within the market range but leaves little upside for the buyer.

Offer Scenarios

Scenario $/Sqft Price Notes
Strong offer $770-800 $2.41M-$2.51M Below avg top-tier $/sqft, accounts for reno vs new build
Fair deal $810-840 $2.54M-$2.63M Mid-range of top-tier comps, reasonable premium for lot + pedigree
At asking $861 $2.70M Supported by 2901 Cedarview ($880/sqft), but that had pool/spa/garage

What Supports the Ask

  • Robert S. Harris architectural pedigree (rare, collectible design)
  • Dob and Eel + Cary Paul Studios renovation quality
  • Large lot: 0.33 acres (bigger than most comps)
  • All-new systems (roof, HVAC, plumbing, insulation)
  • Walking distance to Barton Creek Greenbelt, Barton Springs, Zilker

What Works Against the Ask

  • $861/sqft exceeds most recent sold comps — only top-tier new construction approaches it
  • 3,137 sqft is small for the $2.5M+ tier (comps are 3,400-4,600 sqft)
  • No pool, carport instead of garage
  • Higher-priced Barton Hills homes sat 100-258 days on market
  • Brand new listing (March 31, 2026) — no market feedback yet

Comparable Sales Analysis

Full analysis of 12 recent sales in Barton Hills with market trends, TCAD data, and pricing scenarios. Updated April 4, 2026.

Completed Renovation (39 photos)

Design Renders (5 images)

Before & Construction (5 photos)

History & Renovation

Originally designed by Robert S. Harris, Architect and rumored to have been built by Stenger. Harris practiced in Austin for only four years before relocating — he later became known primarily as a landscape architect and educator, founding USC's Graduate School of Landscape Architecture.

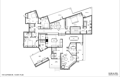
The home underwent a full-scale renovation: architecture by Dob and Eel (preserved original geometry and stone facade, added 773 sqft), construction and interiors by Cary Paul Studios (full gut, all major systems replaced). Described as having "historic design integrity and the peace of mind of a near-new build."

  • Angular geometry, sawtooth facade patterns, pinwheel-type floor plan
  • Dark green exterior to blend with surrounding mature oaks
  • Restored stand-alone fireplace anchoring main living area
  • Restored limestone block walls
  • Dramatic central kitchen with clerestory windows
  • 2 living rooms + dedicated study
  • Barton Creek Greenbelt trails
  • Barton Springs Pool
  • Zilker Park
  • Barton Hills Elementary
Heather Banks
Listing Agent, All City Real Estate
(512) 947-7864
Cary Paul Studios
Developer / Construction / Interiors
carypaulstudios@gmail.com
Dob and Eel
Architect (renovation)
Zillow Listing MLS #1033891 Redfin Listing 1705 Cliffside Dr Dob and Eel Architect project page Cary Paul Studios Developer / interiors Instagram Post Listing announcement